Structural design - the starting point for your build in Hayes, London
putting your concept to paper
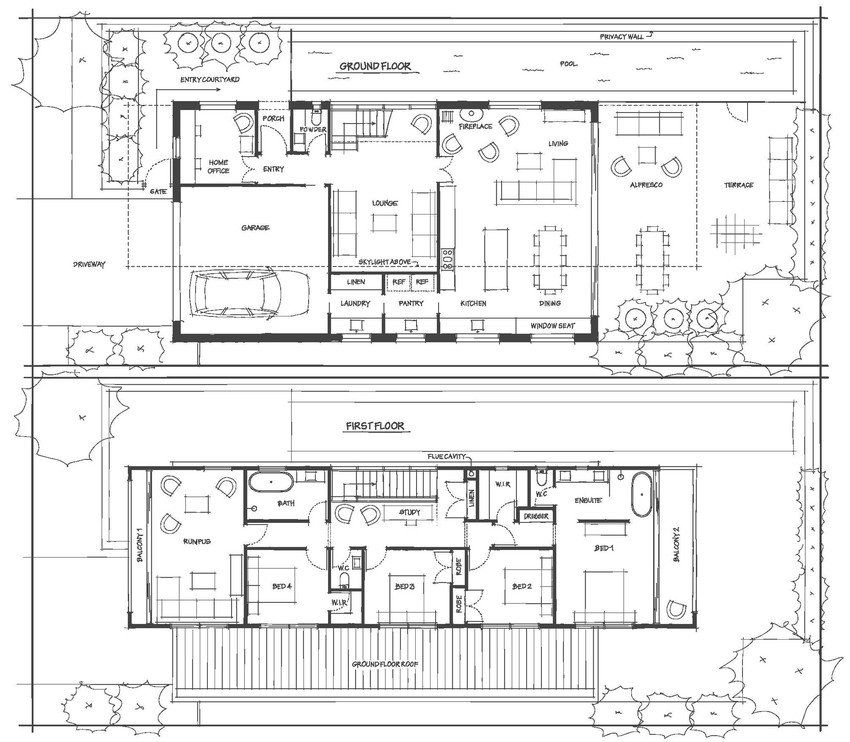
Expert structural planning is imperative for any building, and is the first stage of calculating stability, promoting performance and identifying the viable options available to aid completion of your project. At this point you'll have the opportunity to work alongside expert architects and engineers to design your luxury new build, considering the end goals for the development. As an often complex aspect of construction, we'll take care of every aspect of this, from choosing the foundations and frame system to planning structural safety elements - anything we can do to make this stage more transparent.
The bones and muscles of your project
Our collaboration with industry leaders is what sets Luxatti Homes aside from the rest. With these connections, combined with our own in-house experts, we have the ability to complete each and every aspect of the project without difficulty. As we work with a diverse client base across Hayes, London, our work takes us down many routes, whether that's pre-build consultation work, conducting surveys and reports or completing complex designs. This, amongst many other reasons is how we know we can deliver for your next project.
contact
It all starts with an idea. Speak with our team of home builders to define your objective and find out how we can assist.




